Laveno Mombello (IT) - 2023
progettazione d’interni, arredo, direzione lavori
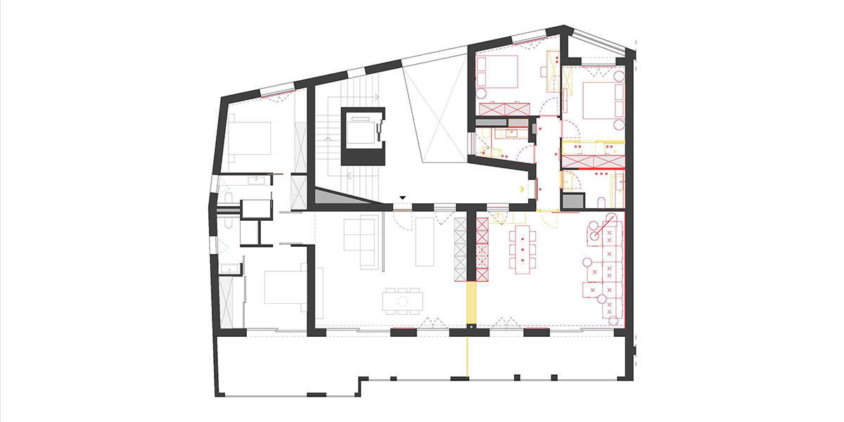
La ristrutturazione ha connesso e uniformato questo appartamento con quello adiacente, aprendo un passaggio che li collega nella zona giorno. La cucina preesistente è stata trasformata in un estensione della cucina dell’altro appartamento, creando così un blocco centrale con cucina da un lato e home-bar dell’altro. Il salotto è stato sfruttato per creare una tranquilla zona relax con un grande divano componibile. L’ingresso di questo appartamento è stato chiuso, lasciando come unica entrata quella dell’altro appartamento; il corridoio, completamente rinnovato, caratterizzato da un illuminazione ritmica e da porte alternate a tele e specchio, conduce a due bagni e due camere. Il bagno di servizio con wc è stato ricavato dal bagno della camera padronale, eliminando la vasca e la lavanderia (già presente nell’altro appartamento); mentre nell’altro bagno è presente la doccia. Tutte le finiture e le scelte d’arredo sono state dettate dall’obiettivo di uniformarsi con quelle dell’altro appartamento, al fine di creare l’illusione che tutti gli spazi facessero parte fin dall’inizio di un’unica abitazione.



architettura d’interni
Contattaci per una consulenza o per un preventivo
Via cantonale 21 6959 Maglio di Colla - Lugano