Caslano (CH) - 2022
correzione acustica, arredo, direzione lavori
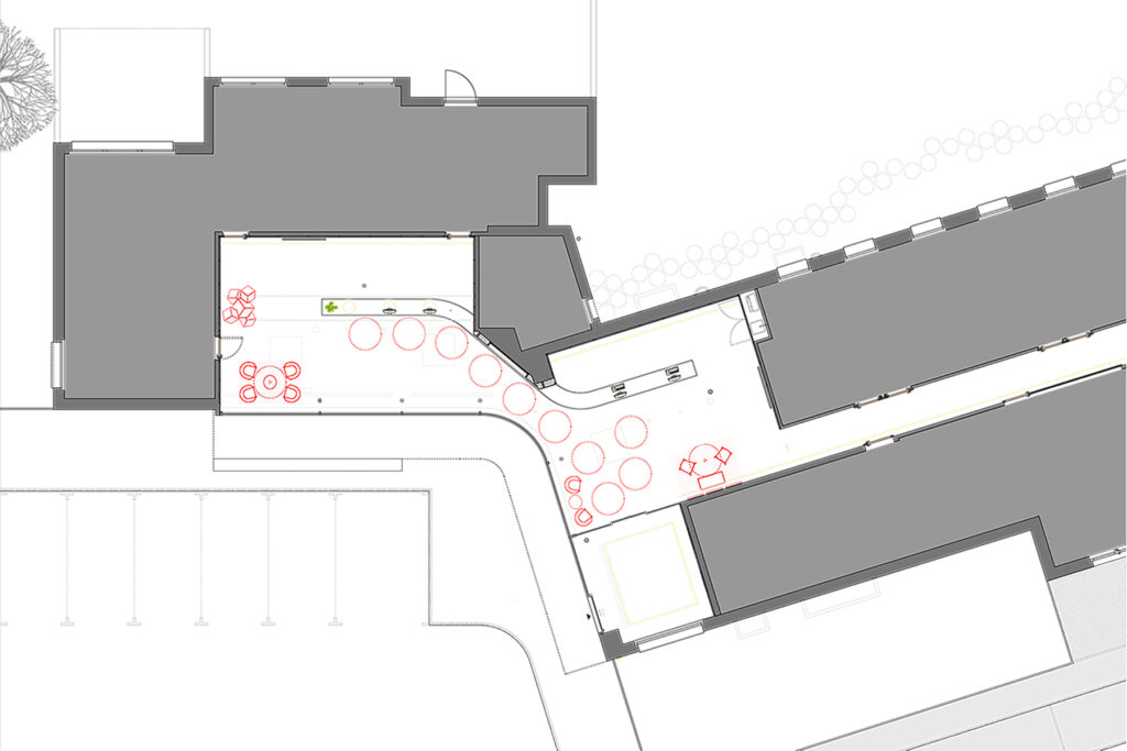
La banca, ristrutturata in precedenza, presentava spazi molto “freddi” e con un’acustica non adeguata alla privacy necessaria a clienti e personale. Il nostro intervento ha migliorato il comfort acustico e reso gli spazi più accoglienti. Per ridurre riverbero e rumore di fondo, per garantire più privacy e tranquillità, sono stati inseriti nel progetto diversi pannelli fonoassorbenti. I pannelli tondi installati a soffitto, oltre alla loro funzione acustica, creano un percorso che accompagna i clienti alle varie postazioni. Per l’accoglienza sono state create due zone d’attesa: un’area interattiva con touchscreen e una area salottino. Infine, per aumentare gli indici di fonoassorbenza e allo stesso tempo dare un tocco estetico distintivo, elementi fonoassorbenti a forma di cubo sono stati usati per creare una composizione quasi scultorea. Ogni elemento utilizzato contribuisce alla creazione di un ambiente armonioso, acusticamente confortevole e in linea con il brand della banca, anche grazie a Caruso Acoustic che ci ha fornito elementi con colorazioni personalizzate.
Potete trovare un approfondimento sul sito di Caruso Acoustic.
Altre immagini del progetto sono visibili sul sito del fotografo Michel Zylberberg.



architettura d’interni
Contattaci per una consulenza o per un preventivo
Via cantonale 21 6959 Maglio di Colla - Lugano