Novaggio (CH) - 2020
collaborazione: progettazione d’interni, direzione architettonica
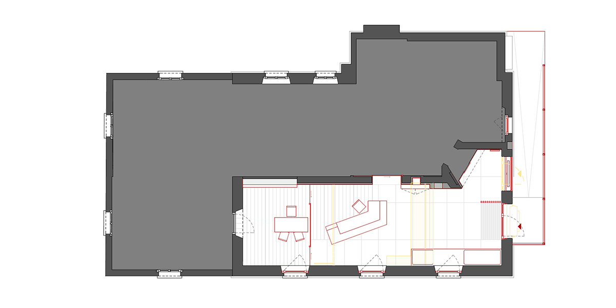
Questa ristrutturazione, in collaborazione con l’arch. Daniel Müller di Bioarchitettura, ha interessato solo gli spazi accessibili al pubblico. L’intervento ha rinnovato completamente l’atmosfera, in linea con il nuovo concept della banca, e ha portato anche questa piccola filiale verso il nuovo concetto di open-bank. L’area accessibile ai clienti prima risultava circoscritta alla zona d’ingresso e risultava piccola e poco accogliente; un bancone con vetrata divideva trasversalmente lo spazio, creando una netta separazione tra banca e cliente. Ora questa separazione è stata eliminata e lo spazio viene percepito come un unico open space; le diverse zone (bancomat, area caffè, area d’attesa e reception) sono ben definite ma non separate. Una piccola sala consulenza è l’unico spazio che necessita privacy; una parete vetrata con doppio accesso (cliente – consulente) permette quindi di separare questo ambiente lasciando comunque percepire lo spazio nella sua interezza. La fruizione dello spazio è resa fluida e intuitiva grazie al layout funzionale. L’atmosfera è accogliente e familiare, ma allo stesso tempo formale e in linea con il concept della banca.
Altre immagini del progetto sono visibili sul sito del fotografo Michel Zylberberg.



architettura d’interni
Contattaci per una consulenza o per un preventivo
Via cantonale 21 6959 Maglio di Colla - Lugano